Загородный дом А 90 №662

Цена строительства от 4 950 000 ₽* * Стоимость не является окончательной
Заявка на консультацию
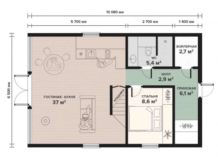
  • Общая площадь 90 м2
  • Длина 10.08 м
  • Ширина 6.5 м
  • Материал стен Каркас
  • Количество этажей 1
  • Подвал Нет
  • Мансарда Имеется
  • Гараж Нет
  • Терраса Да
  • Проживание Круглогодичное
  • Количество комнат 3
  • Количество спален 2
  • Количество санузлов 1
  • Вид проекта дом
  • Застройщик Титан
  • Отделка фасада Обшивка деревом
  • Крыша Двускатная
  • Можно купить домокомплект Нет
  • Модульный тип строения Нет
Планировки
Описание проекта
  • Дверь входная: металлическая
  • Внутренняя отделка: гипсокартон
  • Фундамент: сваи
  • Кровля: металлочерепица
  • Окна: ПВХ 5-ти камерные
  • Срок строительства: 1 месяц

Стоимость:

Тёплый контур: 4 950 000 р.

Предчистовая отделка: 7 470 000 р.

Вас может заинтересовать
Вас может заинтересовать

Выбор местоположения

Задать вопрос / написать нам

E-mail: domgis@mail.ru

Мы свяжемся с Вами в течение дня.

Тех. поддержка
Предмет обращения:
Тукущая страница

Мы свяжемся с Вами в течение дня.

Уведомление
Предмет обращения:
Тукущая страница
Обратный звонок
Обратный звонок
Выберите ваш город
Пожаловаться

Объявление опубликовано.
Изменения сохранены

Период публикации - бессрочный, при условии подтверждения актуальности каждые 50 дней. Уведомления будут отправляться на Вашу электронную почту.

Выберите причину снятия с публикации

Снятые с публикации объявления не участвуют в поиске и недоступны для подробного просмотра.

Для повторной публикации нажмите «Вернуть в публикацию»