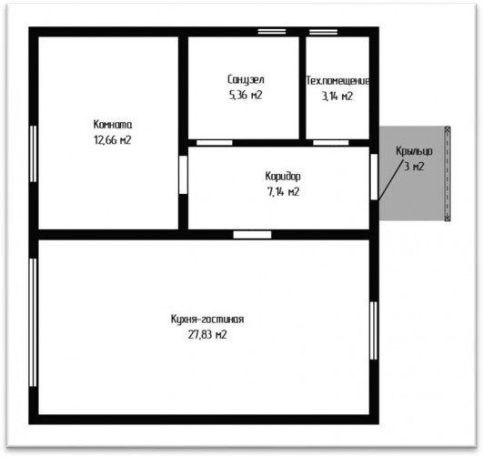
Уютный 66,7 м²- это современное одноэтажное строение, созданное с учетом потребностей небольшой семьи. Проект разработан с акцентом на функциональность и доступность.
Дом создан с учетом современных требований к жилью, обеспечивая комфортное проживание при оптимальном использовании площади.
Комплектации:
ДОМОКОМПЛЕКТ 980 000 р.
СТАНДАРТ 3 150 000 р.
КОМФОРТ 4 500 000 р.
КОМФОРТ+ 5 800 000 р.
Выбор местоположения
Мы свяжемся с Вами в течение дня.