Марибор №39

Цена строительства от 10 115 000 ₽* * Стоимость не является окончательной
Заявка на консультацию
  • Общая площадь 119 м2
  • Длина 11.8 м
  • Ширина 8.5 м
  • Количество этажей 1
  • Подвал Нет
  • Мансарда без мансарды
  • Гараж Нет
  • Терраса Да
  • Проживание Круглогодичное
  • Количество комнат 4
  • Количество спален 3
  • Количество санузлов 2
  • Вид проекта дом
  • Застройщик Дерево для жизни
  • Архитектурный стиль Европейский
  • Можно купить домокомплект Да
  • Модульный тип строения Нет
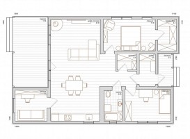
Планировки
Описание проекта

Проект "Марибор" - удачное сочетание финского архитектурного дизайна и нашей передовой технологии. Разработанный финским архитектором, он стал удивительно удобным и эргономичным. Нашим клиентам выбирают этот проект за его удобство и функциональность.

Спроектированный специально для того, чтобы наслаждаться уединением с природой, проект "Марибор" сочетает в себе простоту и изысканность. Его элегантный дизайн магнетически притягивает и делает его особенно привлекательным.

Проект доступен в трех комплектациях:

I. Домокомплект

Стоимость: 3 340 000 ₽

Это готовый набор всех элементов для строительства дома из двойного бруса, который можно собрать самостоятельно или с помощью бригады. Все детали точно подогнаны, обработаны и готовы к сборке, что позволяет существенно сэкономить на строительстве.

Что входит в стоимость?

1. Стены камерной сушки (10-12% влажности) строганные, чистовые. Брус 135*45. Сосна.

2. Перекрытия, обвязка и лаги естественной влажности. Брус 200*50. Сосна.

3. Обвязка камерной сушки (10-12% влажности) строганная, чистовая. Брус 140*50. Сосна.

4. Закладной брус в проёмы камерной сушки (10-12% влажности) строганный, чистовой. Брус 150*50. Сосна.

5. Откосы для окон камерной сушки (10-12% влажности) строганные, чистовые. Брус 85*20. Сосна.

6. Стропила естественной влажности. Доска обрезная 200*50. Сосна.

7. Обрешетка естественной влажности. Доска обрезная 150*25. Сосна.

8. Потолок черновой естественной влажности. Доска обрезная 150*25. Сосна.

9. Пол черновой естественной влажности. Доска обрезная 150*30. Сосна.

Доставка домокомплекта прямо до вашего участка и разгрузка включены в стоимость для следующих регионов: Новосибирская, Кемеровская, Томская области, Алтайский край и Республика Алтай. Вы получаете всё необходимое без скрытых доплат – просто выбирайте проект и начинайте строительство!


II. Комплектация "Теплый контур"

Стоимость: 10 115 000 ₽

Надёжная основа для вашего будущего дома. Комплектация включает все основные конструктивные элементы, обеспечивающие долговечность, тепло и энергоэффективность.

Что входит в стоимость?

1. Фундамент свайный: Сваи винтовые 8 мм, заполнение песчано-цементной смесью либо железобетонные.

2. Комплект стеновой из двойного бруса: Комплект стеновой изготовлен из горной сосны с высоким содержанием смолы. Комплект содержит лаги, стропила, обрешетку, обвязочный брус, закладные в проемы. Стены чистовые (гладкие, строганные).

3. Кровля - металлочерепица: Все доборные элементы в комплекте. Профиль и цвет материала на выбор. Кровля выполняется вентилируемой.

4. Утепление: Утеплитель - эковата негорючая, бесшовная, препятствующая размножению насекомых и животных. Срок службы - 70 лет. Толщина утеплителя стен - 150 мм. Плотность - от 65 кг/м3. Толщина утеплителя потолка и пола - 200 мм. Плотность - от 55 кг/м3.

5. Окна, дверь входная металлическая: Толщина профиля окна - 70 мм, пять воздушных камер, тройной стеклопакет. Фурнитура на окнах Winkhaus.

6. Пол и потолок черновые: Доска обрезная - 135*30 мм. Материал доски - горная сосна.

7. Строительные работы: Все работы, связанные с монтажом дома, входят в стоимость. Фотоотчет о ходе строительства.

8. Накладные расходы


III. Комплектация "Под ключ"

Стоимость: "Тёплый контур" плюс дополнительная стоимость.

Дополнительная стоимость: 4 760 000 ₽

Комплектация "Под ключ" включает в себя всё, что необходимо для готового дома, в котором можно жить сразу после строительства. Ваш дом полностью готов к жизни – заезжайте и наслаждайтесь комфортом!

Что входит в дополнительную стоимость?

1. Электромонтаж – разводка проводки по всему дому.

2. Канализация – наружная и внутренняя системы.

3. Водоснабжение – прокладка труб внутри дома и подключение к системе.

4. Отопление: магистральная отопительная система, водяной тёплый пол, электрический тёплый пол.

5. Чистовая отделка:

  • Напольное покрытие – кварцвинил, ламинат.
  • Монтаж межкомнатных дверей – готовые решения для стильного интерьера.
  • Монтаж потолка – имитация бруса – сохраняет эстетику натурального дерева

6. Финишная обработка (по желанию):

  • Покрытие огнебиозащитой – дополнительная защита от влаги, огня и насекомых.


С технологией двойного бруса вам не нужно ждать годами, чтобы заехать в новый дом. Вы получаете энергоэффективное, прочное, стильное и полностью готовое жильё с минимальными затратами на отделку.

Свяжитесь с нами – и мы создадим дом, который идеально подойдёт именно вам!

Вас может заинтересовать
Вас может заинтересовать

Выбор местоположения

Задать вопрос / написать нам

E-mail: domgis@mail.ru

Мы свяжемся с Вами в течение дня.

Тех. поддержка
Предмет обращения:
Тукущая страница

Мы свяжемся с Вами в течение дня.

Уведомление
Предмет обращения:
Тукущая страница
Обратный звонок
Обратный звонок
Выберите ваш город
Пожаловаться

Объявление опубликовано.
Изменения сохранены

Период публикации - бессрочный, при условии подтверждения актуальности каждые 50 дней. Уведомления будут отправляться на Вашу электронную почту.

Выберите причину снятия с публикации

Снятые с публикации объявления не участвуют в поиске и недоступны для подробного просмотра.

Для повторной публикации нажмите «Вернуть в публикацию»